 Anthony Builders, Inc.
Anthony Builders, Inc.
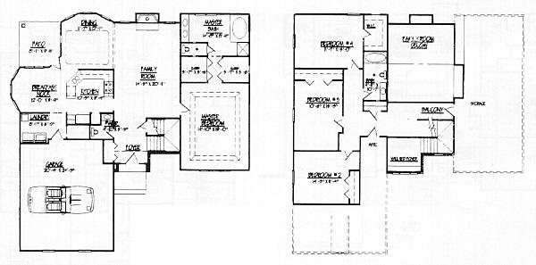
| by Frank Betz Associates, Inc. 2,493 square feet of living space |   | 
|  | |
Return to Frank Betz Designs
Click here to Visit The Anthony Builders Community Guide!
 
Anthony Builders, Incorporated
434 Clearfield Street
Freemansburg, PA 18017
610-865-9314