Woodcrest Estates - "T" Series Floor Plan Options 

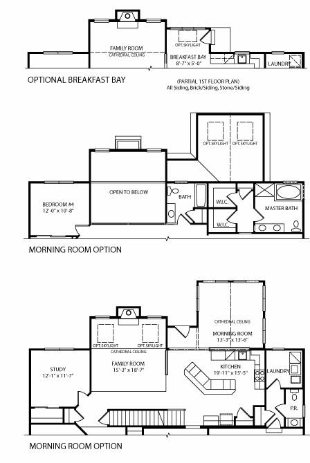
Morning Room and Breakfast Bay Options

Front Porch Options
Elevations ·
Floor Plans
Call 610-409-9900 or 
click here to contact us about Woodcrest Estates!
***Prices and Features are Subject to Change without Notice***
Community Homepage ·
Community Fact Sheet ·
Pricing
Standard Features ·
Community Plot Plan ·
Map and Directions