
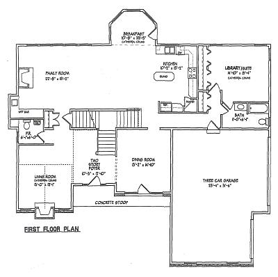
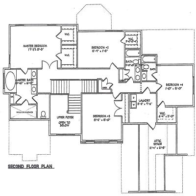
| 4 Bedrooms, 3 1/2 Baths |  | 
|   | Family Room 22'8" x 15'2" Living Room 13'0" x 15'1" Dining Room 13'2" x 14'10" Kitchen 10'2" x 15'2" Breakfast Room 10'8" x 23'5" Library 14'10" x 13'4" 3 Car Garage 23'4" x 31'6" Additional Spaces Powder Room Bathroom | 
|   | Master Bedroom 19'8" x 13'8" Master Bathroom 10'10" x 16'0" Bedroom #2 13'9" x 11'8" Bedroom #3 13'2" x 15'0" Bedroom #4 11'10" x 13'0" Additional Spaces 4 Walk-In Closets 2 Bathrooms Laundry Attic Space Loft/Balcony | 
If you would like more information about new home construction, please click here.
Communities |
Company Information |
Quick Deliveries
Custom Homes |
Philadelphia Region |
Contact Us |
Home