Marra Homes - New Home Builders in Delaware

For New Home Community information click here or call
Rob Young at (302) 984-4545

Model #40
4 Bedrooms, 3 1/2 Baths, Master Bedroom on 1st Floor
New Castle County real estate
floor plan Great Room
19'0" x 19'0"
Dining Room
14'0" x 12'0"
Kitchen
18'0" x 15'0"
Breakfast Room
15'0" x 12'0"
Parlor
14'0" x 17'0"
Master Bedroom
19'0" x 19'0"
3 Car Garage

Additional Spaces
Master Bath
Laundry Room
Powder Room
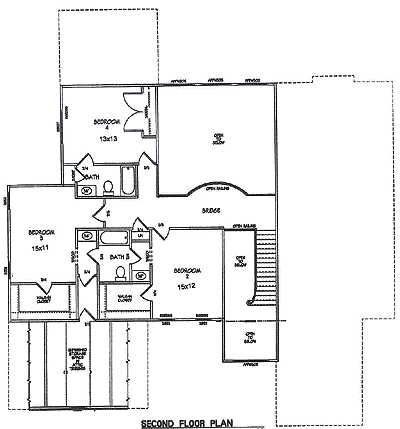
floor plan Bedroom #2
15'0" x 12'0"
Bedroom #3
15'0" x 11'0"
Bedroom #4
13'0" x 13'0"
Additional Spaces
2 Walk-In Closets
2 Bathrooms
Loft/Balcony

If you would like more information about new home construction, please click here.

Index of Home Models


All information is deemed reliable but is not guaranteed. Properties that are shown are subject to change, prior sale or withdrawal. Neither listing brokers nor information providers shall be responsible for any typographical errors, misinformation, or misprints, and shall be held totally harmless.

Communities | Company Information | Quick Deliveries
Custom Homes | Philadelphia Region | Contact Us | Home